발토랑스 >
아파트 >
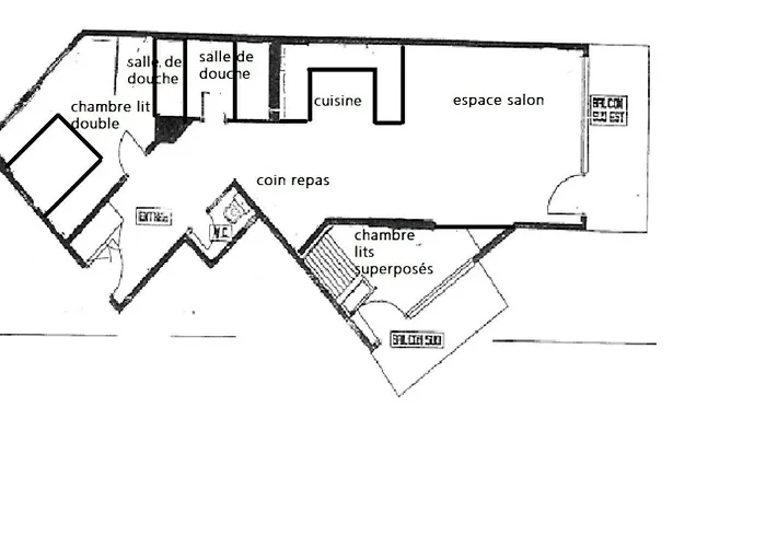
Residence Hauts De Chaviere - Val Thorens Location: Bel Appartement De 53 M2 Traversant, Confortable Et Calme De 53 M2, Bien Situ Mae-9037
Residence Hauts De Chaviere - Val Thorens Location: Bel Appartement De 53 M2 Traversant, Confortable Et Calme De 53 M2, Bien Situ Mae-9037
갤러리
미리보기만으로 모든 호텔 사진 보기
32장의 사진 모두 보기 1 /
32
여행 날짜에 가장 적합한 옵션
지도에서 호텔 보기
Residence Hauts De Chaviere - Val Thorens Location: Bel Appartement De 53 M2 Traversant, Confortable Et Calme De 53 M2, Bien Situ Mae-9037
레베르티 스키 리프트는 숙소에서 4km 거리에 있으며 몽 드 라 셩브흐는 2km 떨어져 있습니다.
숙소에서 50m 거리에 위치한 L'Auberge des Balcons 레스토랑에서 Europese 요리를 맛보실 수 있습니다. Magic In Motion Ski School Val Thorens도 옆에 있습니다.
부엌도 손님 처분이 가능합니다. Les Balcons 버스 정류장은 여기에서 도보로 5분 거리에 있습니다.
더 보기 +
더 적게 -
잠시만 기다려주십시오. 이용 가능한 객실을 확인중입니다.
호텔 찾는 중
편의 시설
주요 시설
- Wi-Fi
- 애완동물 금지
시설
개요:
- 전 구역 금연
- WiFi
- 주차 금지
- 애완동물 출입금지
객실 어메니티:
- 차와 커피 시설
정책
체크인: 17:00부터 19:00까지
체크아웃: 08:00부터 10:00까지
허가 번호73257009179WF
지도
지역 명소
공항
- 에네시 공항 (117 km)